REF. 2508/25 - Casa en condominio en venta en Club de Golf las Fuentes, Puebla, Puebla



Descripción


Vive la vida al máximo en esta impresionante casa de lujo

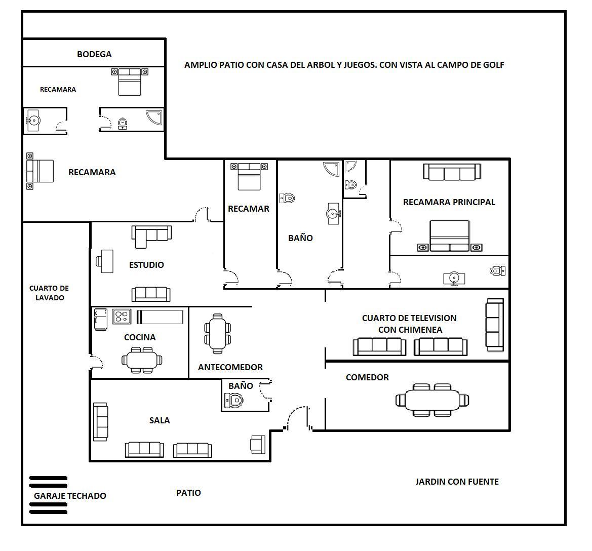
Ubicada en el exclusivo Club de Golf Las Fuentes, esta amplia casa es un verdadero paraíso para aquellos que buscan una vida de lujo y tranquilidad. Con un terreno de 972m2 y 469m2 de construcción, esta propiedad ofrece:

- 5 recámaras amplias y luminosas, incluyendo la principal con walking closet de ensueño
- 4 baños completos y un medio baño para invitados
- Un acogedor family room con chimenea, perfecto para reuniones familiares
- Un gran jardín colindante con el hoyo 4 del campo de golf, ideal para relajarse y disfrutar del paisaje
- Terraza para asador y áreas al aire libre para disfrutar de la naturaleza
- Comedor y sala principales con espacios amplios y luminosos
- Cocina y antecomedor equipados para preparar deliciosas comidas
- Bodega y cuarto de lavado para almacenar y organizar
- Estacionamiento para 4 autos en una sola planta

Además, la propiedad cuenta con un departamento independiente en la segunda planta, ideal para personal de servicio o invitados, con:

- 1 recámara con baño completo y sala de estar

Disfruta de las amenidades del Club de Golf Las Fuentes

- Campo de golf de 9 hoyos y práctica de golf para mejorar tu juego
- Alberca y camastros para relajarte y disfrutar del sol
- Vestidor de damas y caballeros con vapor, sauna, lockers y personal de servicio
- Restaurante y bar para disfrutar de deliciosas comidas y bebidas
- Gimnasio y ludoteca para mantenerse activo y divertirse
- Áreas verdes y zona de asador para reuniones al aire libre
- 1 cancha de paddle y 3 canchas de tenis para practicar deportes
- Se oficia misa los domingos en la palapa del club

No te pierdas esta oportunidad única de vivir la vida al máximo en esta impresionante casa de lujo

Vídeo


Contacto


  • Oficina: 2508 - Alfa Inmobiliaria Luxus
  • Calle Paseo De San Carlos 14, Fraccionamiento Jardines de San Carlos, San Andrés Cholula, Puebla
  • Teléfonos: 2221477190
  • Whatsapp: 2221477190
  • Email: [email protected]
  • Web: www.alfaluxus.com

Información


  • Precio de venta: 19,000,000 MXN
  • Año de construcción : 1996
  • M2 construidos : 469 m2
  • M2 terreno : 972 m2
  • Habitaciones : 5
  • Baños : 4
  • Medios baños : 1
  • Estado de conservación : buen estado
  • Interior/exterior : Mixto
  • Amueblado : sin amueblar
  • Cocina : cocina con desayunador
  • Tendedero : cubierto
  • Equipamiento : piscina, tenis, squash, gimnasio, pádel, golf, vigilancia 24h, Zonas infantiles, Condominio privado.
  • Varios : admite mascotas.
  • Puerta : madera barnizada.
  • Suelos : madera.
  • Instalaciones : acceso a internet, chimenea, closets, cuarto de lavado, cuarto de servicio, estudio, jardín, línea telefónica, patio, playroom, cuarto multipropósito, cuarto de TV.

Comparte esta Propiedad:

WhatsApp
Facebook
Twitter
Email

CONTACTO

Escríbenos, será un placer atenderte.